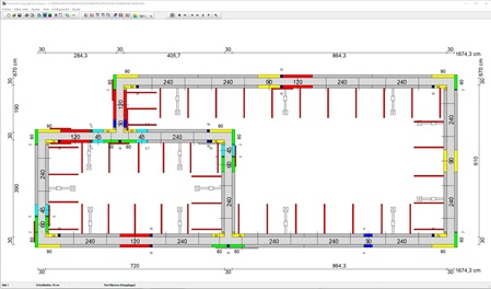
Rápido y sencillo, calcule el encofrado para un proyecto de construcción. Software EuroSchal...
Racionalizar, ahorrar tiempo de trabajo, reducir costes, todo esto lo puede conseguir con EuroSchal® en sus obras.
Un menú de navegación fácil de usar le permite trabajar racionalmente con EuroSchal® sin gran esfuerzo ni formación.
Utilice EuroSchal® para sus futuras operaciones de encofrado. De este modo, se reducen los costes de desplazamiento entre la obra y el lugar de almacenamiento. Se eliminarán las ausencias, los elementos de encofrado insuficientes o erróneos en la obra.
Su capataz de almacén y los hombres de la obra obtendrán resultados más rápidos si puede proporcionarles más ayuda en forma de listas de materiales, encofrados o planos de ciclos. Mantenga el control de los elementos de encofrado incluso en varias obras.
Somos independientes de los fabricantes de encofrados, por lo que podemos ofrecer el programa adecuado para todos los tipos de encofrado habituales.
Por supuesto, también es posible integrar varios tipos de encofrado en un programa, incluso entre fabricantes.
Si tiene alguna pregunta sobre EuroSchal®, no dude en ponerse en contacto con nosotros.
Con saludos cordiales
Su equipo EuroSchal
